目次
兼六亭御宿は、金沢の町家を一棟貸しで提供する、1日1組限定の宿泊施設です。二階建て・2ベッドルーム、キッチン、庭を望むオープンプランのバスルームを備え、家族や友人同士での滞在に適しています。改修・設計・運営はいずれも地元金沢の手によるもので、兼六園まで徒歩約5分、主要観光スポットも徒歩圏内という立地です。建物は江戸時代(寛永頃)に帰山助右衛門の邸宅であったと伝わり、地域の歴史を今に伝える町家として保存・活用されています。金沢観光や各種アクティビティの拠点としてご利用いただけます。
- 形態:町家一棟貸し/1日1組限定
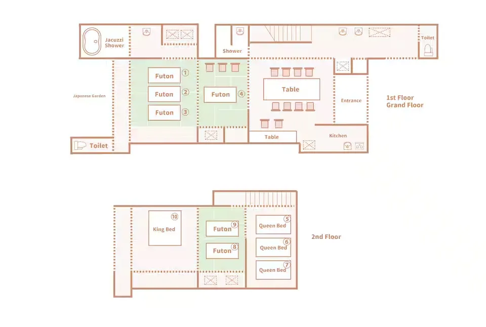
- 階数・間取り:2階建て・2ベッドルーム
- 設備:キッチン、庭向きオープンプラン・バスルーム
- 運営:地元住民による改装・設計・運営
- 立地:兼六園まで徒歩約5分、主要観光地が徒歩圏
- 歴史:江戸時代(寛永頃)の帰山助右衛門邸宅と伝承
- 築年数:120年と伝わる
兼六亭 御宿の運用について
かつては別名称でしたが、当宿はコロナ前に運用を開始しました。その直後に新型コロナの影響を受けて受け入れを停止し、2022年のコロナ明けから「兼六亭御宿」として運用を再開しました。その際に各種システムを刷新し、最先端の宿として運用していると自負しています。お客様の約99%は海外からのお客様です。
AirBnbとbooking.com
予約は基本的に Airbnb と Booking.com のみで受け付けています。その他、直接ご連絡いただければ予約対応も可能です。一棟貸し・一組限定の宿で、金沢へ観光に訪れるご家族やグループのお客様にご利用いただいています。Airbnb はメッセージのやり取りが非常に便利なうえ、客層とも合致しているようです。
KEYVOXでQRコードの鍵とbeds24

館内の解錠は KEYVOX の QR コード鍵システムを導入しています。KEYVOX は API や Google カレンダー とも連携でき、非常に便利です。このほか Beds24 を導入し、Airbnb や Booking.com などとの在庫連携・予約管理を相互に行っています。Beds24 も API に対応しており、予約情報は Google カレンダーでスタッフ全員が共有可能です。特に清掃のタイミングは、チェックアウト時刻などから自動計算され、カレンダーにシフトとして自動登録される仕組みになっており、好評を得ています。


兼六亭 御宿の内部を紹介
玄関と一階リビング
玄関と一階リビングです。リビングには大きなダイニングテーブルを設置し8人まで座ることができます。写真に写っていませんが、椅子は10脚準備してあります。


バスルーム
建物は伝統的な日本の家屋ですが水回り新しいものを利用しています。この辺りが好評な理由です。水回りだけは都市ガスです。基本的に火災を最小限に無くすために設計されています。


1階居間
一階には日本らしい居間。お布団を敷いて日本らしい滞在も可能です。お庭、縁側もございます。


2階寝室
2階にはベッドが2つあります。キングベッドx1、クイーンベッドx2。これ以外にもお布団を準備しています。書類上合計14名まで宿泊ができますが兼六亭御宿では10名までの受け入れとしています。


間取り図
お布団を敷く前の間取り図。

お布団を敷いた時の間取り。


